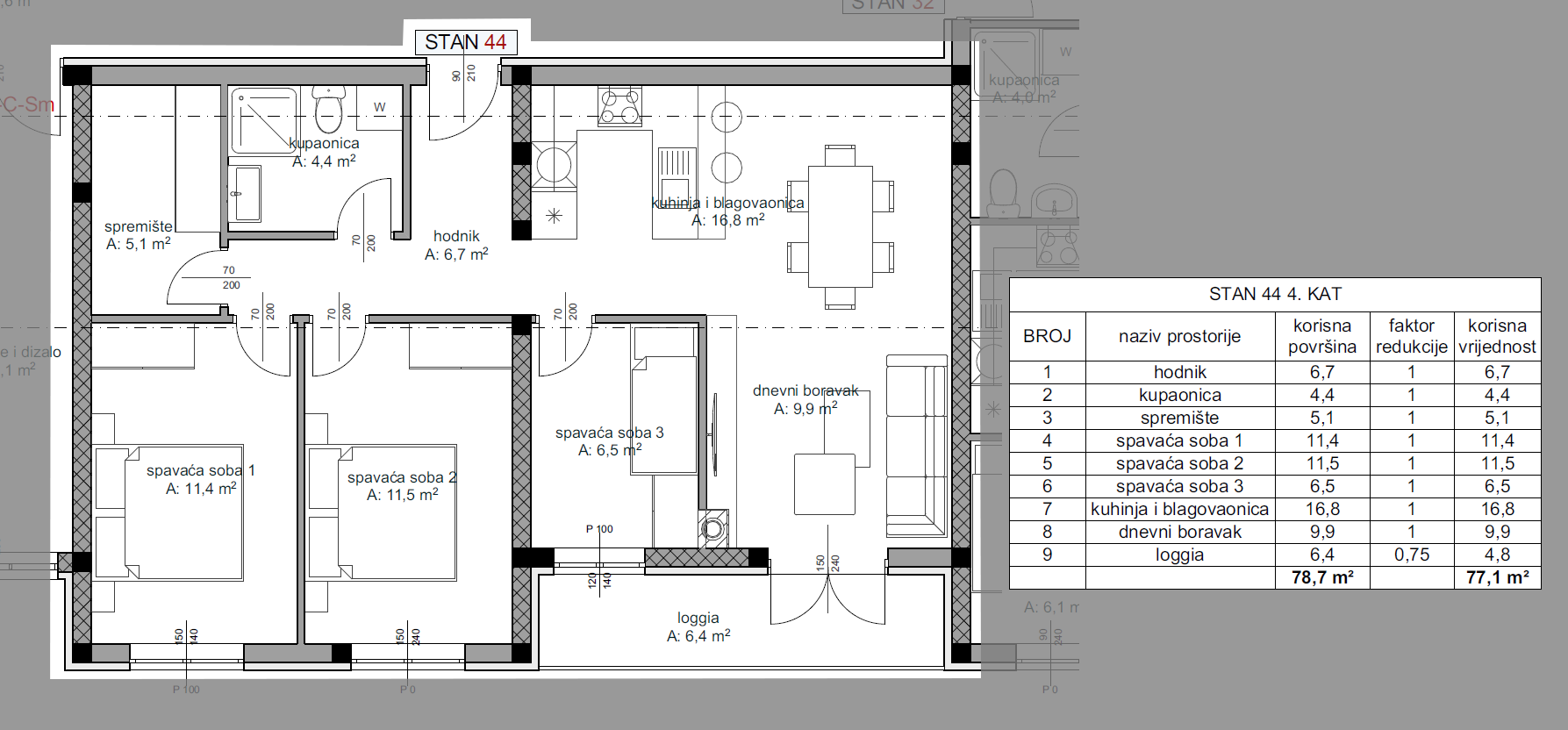
Comfortable apartment in Novogradnja Monvidal, good location – 4th floor, 83m2
For sale, a comfortable apartment in a new building in Monvidal, in a very good position not far from Pula City Mall. The apartment is located on the fourth floor, with a total area of 83m2 (77m2 + 6m2, 2 outdoor parking spaces). It consists of a hallway, a living room with a kitchen and a dining room, three bedrooms, a storage room, a bathroom and a balcony. The apartment comes with two parking spaces, which are also registered as ownership. The building itself is located in a good position on Monvidal, near Pula City Mall, while it is about 20 minutes’ walk from the city center.
- Šifra oglasa:
- Cijena : 190,900 €
- Datum izgradnje : 2023
- Kvadratura : 83 m2
- Broj soba : 3
- Grijanje : Struja / Klima
- Energetski Certifikat : A+
- Kat : 4


Floor plan of Apartment S44

